物件詳細
【お問い合せNo:江南市高屋町 中古住宅】
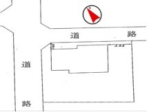
■角地の整形地
■ゆとりの敷地 土地100坪以上
■インスペクション実施済み
■居室が南向き陽当たり良好
■現状渡し
電気
浄化槽
側溝
都市ガス
上水道
| 物件種目 | 中古住宅 | ||
| 所在地 | 江南市高屋町北上96番地 | ||
| 交通 | 犬山線「柏森駅」 2320m 徒歩29分 犬山線「江南駅」 2630m 徒歩33分 |
||
| 学区 | 古知野東小学校 / 古知野中学校 | ||
| 価格 | 650 万円 | ||
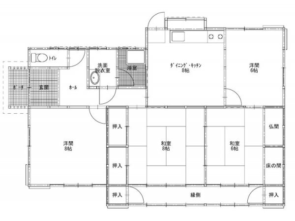
| 建物面積 | 88.60㎡(26.80 坪) | 土地面積 | 347.49㎡(105.11 坪) |
| 間取り | 4DK | 築年月 | 1979年12月 |
| 構造 | 木造 | ||
| ■用途地域:指定のない地域■都市計画:市街化調整区域■建ぺい率:60%■容積率:200%■土地権利:所有権■道路1:北東側 約4.0m公道に 約16.5m接道■道路2:北西側 約6.0m公道に 約15.5m接道■接面道路の方位:角地■現況地目:宅地■登記簿地目:宅地■地勢:平坦地■階数:1階■現況:空家■引渡:相談■駐車場:有■取引態様:専任 | |||
| 状態 | 募集中 | ||
| 備考 |
■新宅地の為、建替えする場合は要資格者の要件が必要になります |
||
2025年12月14日 時点
周辺施設
古知野東保育園徒歩:16分
距離:1250m
江南厚生病院徒歩:11分
距離:860m
KTXアリーナ徒歩:12分
距離:945m
MEGAドン・キホーテ江南店徒歩:12分
距離:960m
ゲンキ― 高屋店徒歩:5分
距離:400m
学校施設
古知野東小学校学校徒歩:21分
距離:1650m
古知野中学校学校徒歩:22分
距離:1760m
緯度経度情報等の誤差により、実際の場所と異なる場合があります。
- ※現況と図面が異なる場合は現況を優先します。
- ※徒歩分数は地図上の概測距離に基づき80m/分で算出した概算時間です。
【位置情報に関するご注意】
現在位置情報は精査中の為、正確ではない場合があります。あくまで参考程度の情報となります。
詳しい場所に関しては資料請求またはお問い合わせにてご確認ください。





















